
Condomínio Arborais - Campinas/SP
Casa em ótima localização no Arborais!
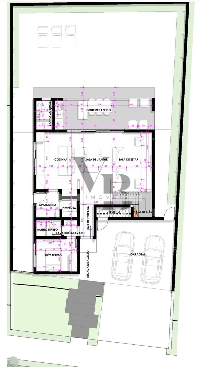
- Área do terreno: 425 M2
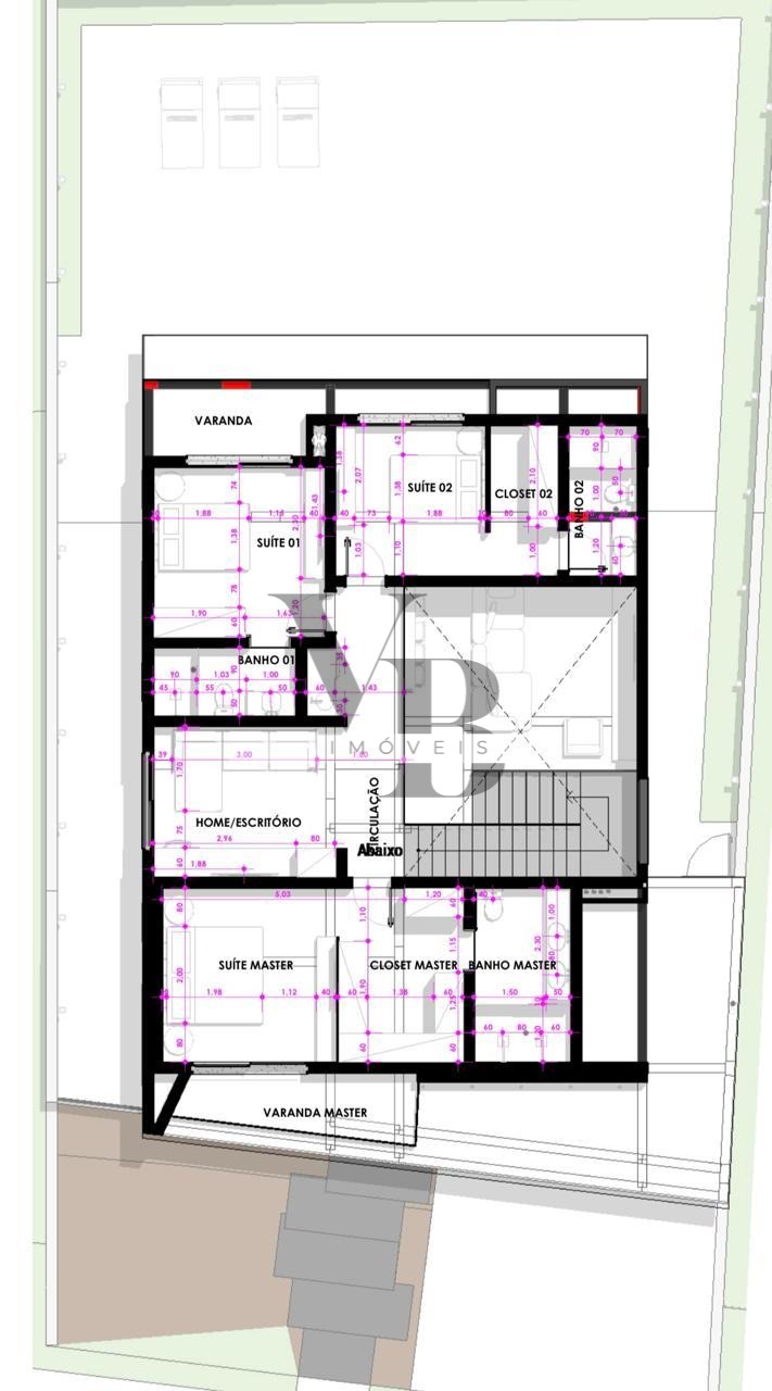
- Área construída: 300 M2
- 4 quartos / 5 banheiros / 4 vagas.
1o pavimento: Living amplo com cozinha americana, quarto reversível p/ suíte no térreo, espaço gourmet c/ churrasqueira americana e banheiro, lavanderia c/ despensa, depósito na garagem, depósito para gás, 4 vagas garagem.
2o pavimento: 3 suítes, sendo 2 suítes com closet, sala íntima, mini copa, varandas com linda vista definitiva!
Entrega com:
- Aquecimento solar
- Infra de ar condicionado
- Acabamentos e revestimentos de alto padrão.
Sonhos são feitos para serem vividos e realizados.
Entre em contato com a nossa equipe e juntos vamos encontrar o imóvel ideal pra você.
(19) 97139-2672
(19) 98250-8822
@vbnegociosimobiliarios
www.vbnegociosimobiliarios.com.br